Объекты недвижимости в аренду на длительный срок в Тольятти

672
24.03.2026 17:16:08

Универсальное. аренда Универсальное. аренда | Купить недвижимость без посредников в Cамаре | Ленинский проспект, 5А | 557364

320 м²

Общая площадь

1 из 1

Этаж

Об объекте

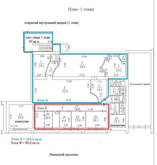
Сдаётся в аренду благоустроенный цокольный этаж здания на первой линии Ленинского проспекта, 3Б квартал. Этаж общей площадью 320 кв.м. Офисная отделка, ранее был банк. Высота потолков 2,65 м. Аренда отдельных кабинетов не предусмотрена. Возможно общую площадь можно разделить на два блока А и Б (см. схему) под два будущих арендатора: - Блок А: площадь 234,2 кв. м. с холодным складом на 1 этаже и хоз. выходом в служебный огороженный дворик (открытый склад, служебные парковка, зона отдыха). - Блок Б площадь 85,6 кв. м. с изолированными офисами 18, 12, 9, 30 кв м. Возможен монтаж перегородок. Коммуналка. - В обоих блоках: вода, электричество, тепло, санузлы. Коммунальные платежи арендаторы оплачивают по приборам учета по действующим расценкам поставщиков электроэнергии, воды и тепла. Локация. Первая линия проспекта и пешеходного бульвара, развитая инфраструктура поблизости: магазины, торговые центры, школы, детсады, скверы, медцентры, отделения банков Сбер и ВТБ. Парковка у центрального входа на 50 автомобилей. Интенсивный пешеходный и автомобильный трафик – отличное место для бизнеса. На первом этаже здания размещаются арендаторы: Чижик, маркетплейс, турфирма, прачечная. Арендаторы. В цокольном этаже могут быть: производства пищевых продуктов или др. товаров, фаст-фут, кейтеринг, студия йоги или фитнеса, массажные кабинеты, арт-студия, детские игровые пространства, кафетерий и др.

Подробные характеристики

Риэлтор в CRM Запивахин Сергей Анатольевич
Тип аренда
Паркинг да
Качество отличное
Этаж 1/1
Объект Не важно
Общая площадь 320 м²
Имя риэлтора Запивахин Сергей Анатольевич
Риэлторская организация Русская жемчужина
Эл. почта риэлтора s.zapivahin@yandex.ru
Телефон риэлтора +79272681681
Город Тольятти
Район Автозаводский
Квартал 3А квартал
Адрес Ленинский проспект, 5А
Период оплаты месяц
Подкатегория коммерческая
Тип объекта Универсальная
Тип постройки Нет

Расположение объекта

г. Тольятти Ленинский проспект, 5А

Цена: 80000 руб./месяц

Комм. платежи включены

Проект ведёт

Запивахин Сергей Анатольевич

+79272681681

s.zapivahin@yandex.ru